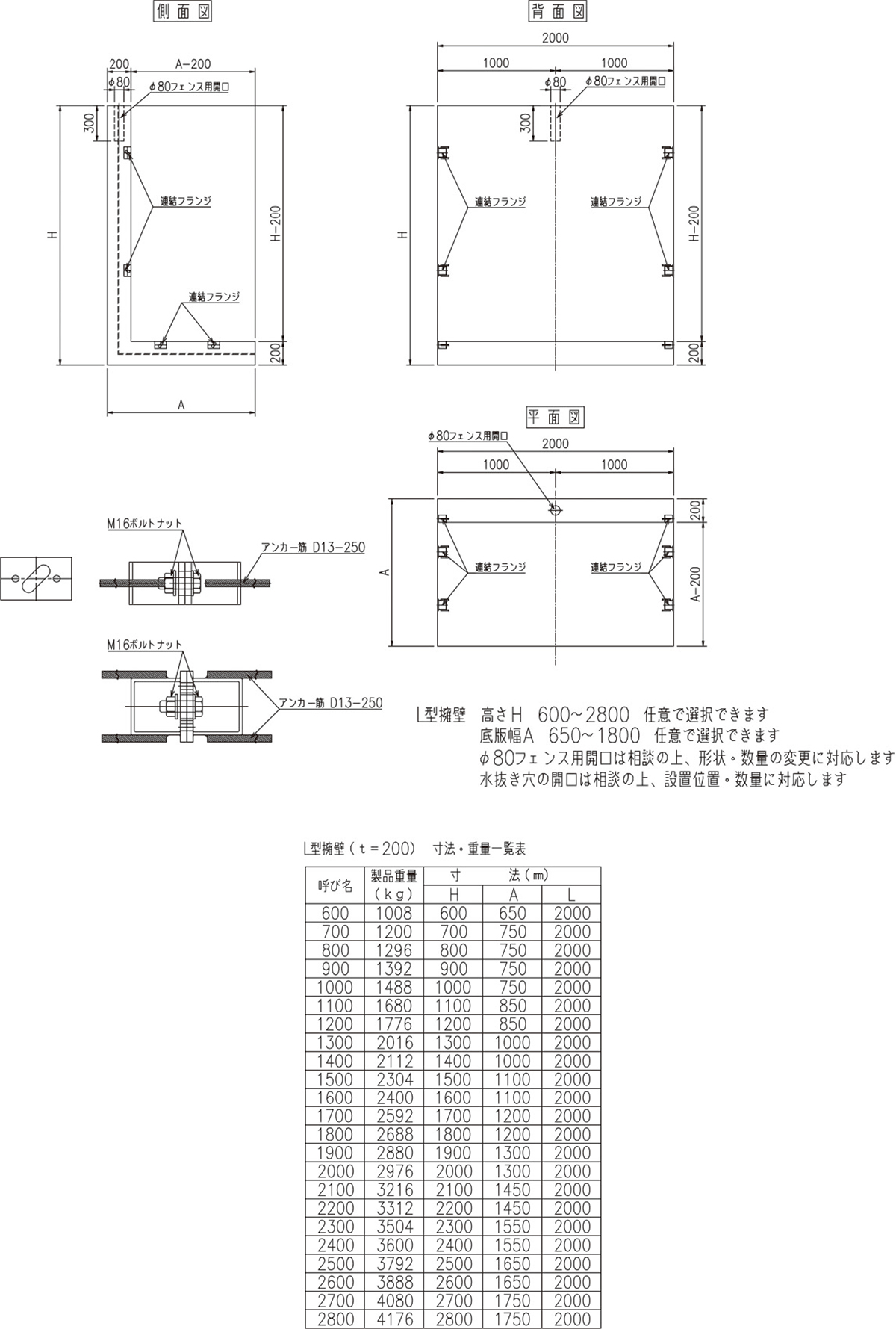
L型擁壁

P175 L型擁壁

製品概要

プレキャスト化した擁壁です。法面を垂直に出来る為に、土地を広く使用することができます。
現場打ち擁壁に比べて工期短縮、省力化が図れます。

用途

宅造、道路

特徴

上載荷重1.0t/㎡に対応する宅地用擁壁ブロック
H=550~3000まで対応

設計図
図面 - P175 L型擁壁
図面 - P175 L型擁壁
図面 - P175 L型擁壁
図面 - P175 L型擁壁
図面 - P175 L型擁壁